
When discussing clone rifles, no other build sparks as much debate as the M4 Recce. Years of misinformation about barrel lengths and suppressors have been repeated so often that they’ve become accepted as fact. My goal here is to clear up the confusion and explain the Lilja M4 barrels.
In the mid to late 1990s, Lilja supplied a large number of “M4 Navy” barrels to Crane for DEVGRU’s M4 Recce rifles which used the M4-Recce suppressor. Kreiger also provided some barrels, but in very limited quantities. Lilja was by far the most common supplier.
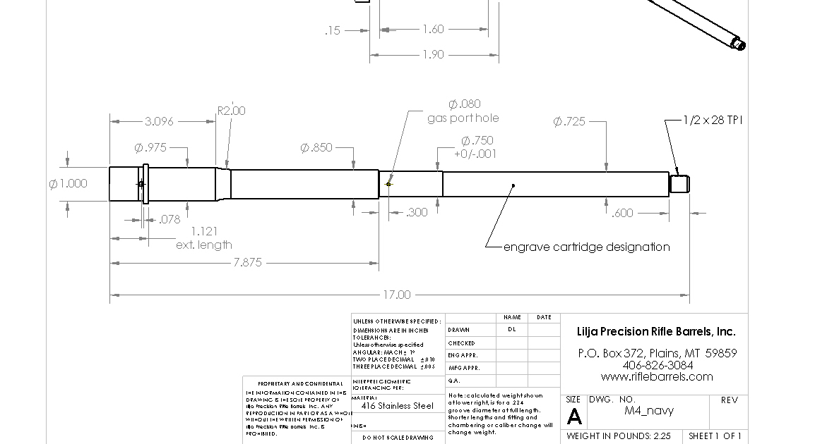
Lilja often lists these M4 barrels as 17″. However, this is because they measured from the barrel extension to the muzzle. That is not the industry standard. Today, barrels are measured from the bolt face to the muzzle. When measured this way, the Lilja M4 barrel comes out to 16.5″.
To add another layer of confusion, DEVGRU itself sometimes referred to these rifles as “16″ Recon rifles.” So, depending on the context, you may hear three different lengths (17″, 16.5″, and 16″) all describing the same Lilja barrel.
Another common misconception is the idea of a 15.1″ Recce barrel. This belief originated when people assumed that the Recce rifles were paired with the AEM5 suppressor. For an AEM5 to sit tight against a KAC FF RAS Long rail, the barrel would have to be 15.1″.
As a result, some cloner approached Lilja and gaslit them that DEVGRU must have cut their M4 barrels down to 15.1″. This is not true. The AEM5 didn’t even exist when the Recce rifles were first built in the mid-90s. On top of that, AEM5 collars don’t fit Lilja barrels even if you cut them to 15.1″.
While the 15.1″ Recce with an AEM5 is not historically correct, it has become a popular modern configuration because it offers excellent performance. Still, it’s important to recognize the difference:
Understanding this history helps explain why the Recce rifle is so controversial in the clone community and why barrel length discussions can seem so confusing.